
Nestled within the south-facing boundary of the walled garden, you’ll find this idyllic stone cottage jam-packed with rustic charm. Boasting exclusive views onto our productive kitchen garden, the exposed beam ceiling, log burning stove and stylish contemporary furnishings result in a calm, restful space that proves irresistible throughout the year.
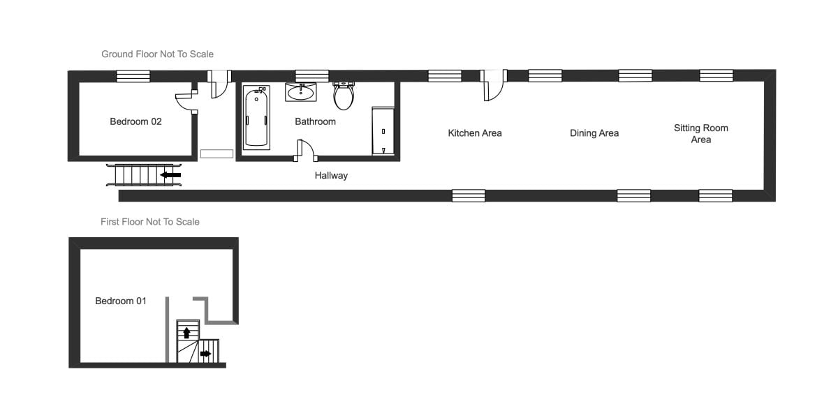
This luxury self-catering accommodation boasts two sizable double bedrooms, one on the ground floor and one on the top floor. The bathroom is also on the ground floor with a stunning roll top bath and walk in shower.

Cannot fault Netherby Hall in the slightest. From start to finish the staff were brilliant and the accommodation was immaculate.A group of us visited and they were more than happy for us to use the grounds as we pleased.Great place to visit for a relaxing weekend away and would certainly visit again in the future!Thank you all and special thanks to Kenny and Helen!
Tom Forder
Gardener’s cottage is set in the magnificent grounds of Netherby Hall in Carlisle and looks directly into the Walled Garden. Like all the accommodation available at Netherby Hall, Gardener's Cottage is furnished to an exceptionally high standard.
This luxury self-catering accommodation boasts two sizable double bedrooms, one on the ground floor and one on the top floor. The bathroom is also on the ground floor with a stunning roll top bath and walk in shower. There is a spacious dining area, and an adjacent kitchen area, fully equipped for your use. The sitting room and kitchen both benefit from windows looking directly into our lovingly restored walled garden.
The kitchen is fully equipped with a coffee machine (complete with pods), dishwasher, fridge freezer, washer /dryer, microwave and cooker with induction hob. All crockery and cutlery are provided.
Central heating.
Electric oven and induction hob.
Wood burning stove.
Fridge/freezer.
Dishwasher.
Coffee machine (pods provided).
Washer/dryer.
Smart 40 inch television.
Travel cot and highchair available on request.
Non-feather bedding.
WiFi/Internet Connection.
Garden benches located around the estate grounds.
Ground floor
Open-plan sitting/dining and kitchen area with breakfast bar and stools.
Bedroom with 4'6 double bed.
Bathroom with bath and separate shower.
First floor
Bedroom with a 4'6 double bed.
Outside
Parking for two cars to the front of the property. Guests have access to Netherby Hall's 36 acres of parkland and gardens.
This luxury stay sits in 36 acres of parkland, where you can stroll across manicured lawns. Enjoy our Victorian pleasure garden and walk through a walled garden that stretches for over an acre. The meticulously restored estate is nestled in north Cumbria, with spectacular views over the undulating landscape to the Scottish hills beyond. Netherby Hall's location is the best of both worlds, situated between the Lake District and Scottish Highlands.
Located in Longtown, Cumbria, Netherby Hall is an ideal, tranquil location close to Carlisle.
The Grade II* mansion house Netherby Hall and its gardens, along with the Pentonbridge Inn have both undertaken an impressive restoration. Set within a total of area of 200 acres of designed landscape bordering the river Esk, the Hall gardens cover approximately 36 acres and consists of a 1.5 acre walled kitchen garden, with herbaceous borders, Victorian pleasure grounds, woodlands and wild flower meadows. The walled kitchen garden provides delicious produce for the Pentonbridge Inn throughout the year with the help of the original Victorian greenhouses.
The now Michelin Starred Pentonbridge Inn is just a few minutes down the road, and with our complimentary Mercedes mini bus service, we can get you there and back. Booking directly with Netherby Hall also gives you priority booking for a table, which our team would be happy to arrange for you. Here you can enjoy an 8-course set tasting menu, courtesy of our fantastic local suppliers and the best produce grown in our walled garden here at Netherby Hall. Reflective of our Head chef Chris' unique style of modern British cuisine.
Netherby Hall plays host to many events throughout the year. For the latest schedule of upcoming events that may be happening on your chosen dates of stay please click here.
For information regarding fishing in the area, please contact Border Esk Fishing, Trout and Salmon Fishing or Cumbria Fly Fishing.
The are many lovely walks nearby including Longtown river walk, a gentle two mile stroll from the small town of Longtown. Kershope Forest is a few miles away offering a number of woodland walks. Kielder Water is a little further where you can walk either through the forest or around the reservoir.
Langholm Fells can be reached approximately 20 miles away and the Northern Fells of the Lake District around 25 miles away where you can climb mountains such as Skiddaw or visit the Caldbeck Fells and enjoy the views over the Solway estuary.
Hadrian's Wall walk runs from Carlisle to Bowness on Solway and makes for a very pleasant walk passing through villages such as Drumburgh and Port of Carlisle. Alternatively, take advantage of a guided walk of Hadrian's Wall and Historic Carlisle.
Carlisle offers horse-racing, the historic cathedral and castle, Eden Rock indoor climbing, The Sands Centre, one of Cumbria's leading venues for entertainment and sports, shopping and much more.